Close
For More Inquiry
905-251-1117
$999,000.00 CAD For Sale

SEATON SOUTH FREEHOLD TOWNHOUSE (3 BEDS & 3 BATHS) in PICKERING!

Description

-

Assignment Summary
  • 488
    Assignment Id
  • -
    Country
  • 1208000
    Original Price (CAD)
  • -
    Development/Levy Charges
  • -
    # of Dens
  • Included
    Parking
  • -
    No of Locker Units
  • Townhouse
    Type
  • Regional Municipality of Durham
    City
  • 138000
    Original Deposit (CAD)
  • 2500-2999
    Approximate Size (SqFt)
  • 3
    # of Washrooms
  • None
    Parking Type
  • 2024-04-25
    Occupancy Date
  • Assignment Sale
    Status
  • Ontario
    State / Provice
  • 999,000.00 CAD
    List Price (CAD)
  • Exposure
  • -
    Media Room/Study?
  • 1
    # of Parking Spots
  • -
    Upgrade Charges
  • Apartment
    Style
  • -
    Postal Code / Zip
  • 2
    Cooperating Commission %
  • 3
    # of Bedrooms
  • None
    Balcony
  • Not Included
    Locker
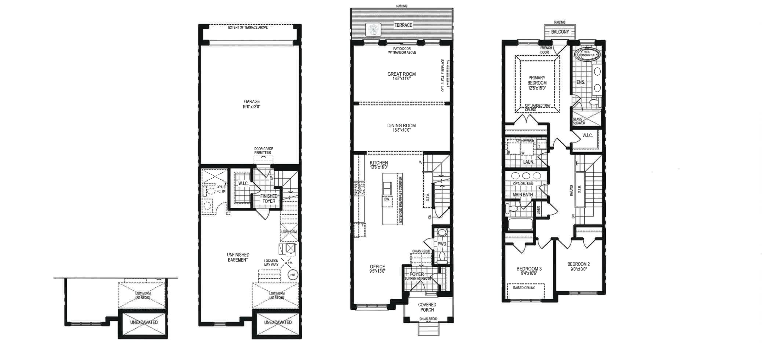
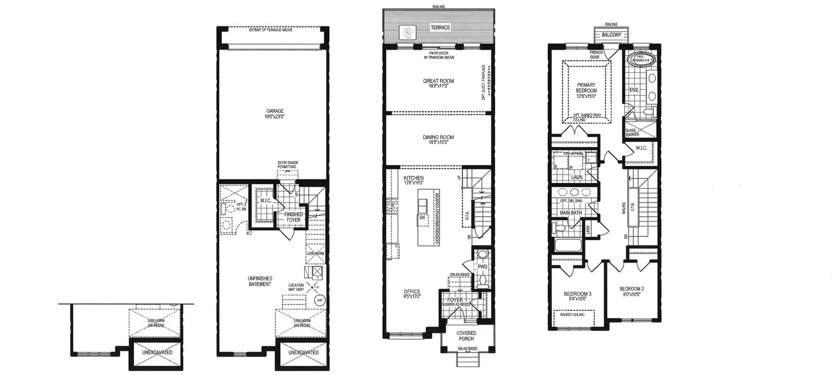
Floor Plans
Support Member
Assignaway.com
Make an Offer

Discover an opportunity to submit your offer on this exceptional property. Impeccable decor, contemporary lighting fixtures, and premium finishes await your consideration.